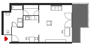
APPARTEMENT
 

Wohnfläche
Nutzfläche
Balkon

73,5 qm
68,3 qm
Süd-West